I. HỆ THỐNG CHẶN NƯỚC KRYSTOL- CHÈN KÍN MẠCH NGỪNG TƯỜNG

CHÈN KÍN MẠCH NGỪNG TƯỜNG – BIỆN PHÁP ỨNG DỤNG VỮA TRÁT NGOÀI
LƯU Ý CỦA NHÀ SẢN XUẤT:
1. TẠO RÃNH HÌNH V 40 MM X 40 MM (1,5 IN. X 1,5 IN.), TỚI 30 MM (1,2 IN.), CÁC RÃNH V TRÊN HAI MẶT NẰM Ở VỊ TRÍ MẠCH NGỪNG ĐƯỢC ĐỊNH VỊ.
2. ĐỔ BÊ TÔNG ĐƯỢC XỬ LÝ BẰNG MÀNG CHỐNG CHẤM TRONG KRYSTOL (KIM).
3. CHÈN CHẶT RÃNH V ĐÃ ĐƯỢC CHUẨN BỊ TRƯỚC BẰNG VỮA CHẶN NƯỚC KRYSTOL TRÀN LÊN BỀ MẶT VỚI TỶ LỆ 3.33 KG/M (2.23 LB./FT.)
LƯU Ý:
1. THI CÔNG PHẢI ĐƯỢC HOÀN THIỆN THEO THÔNG SỐ KỸ THUẬT CỦA NHÀ SẢN XUẤT.
2. KHÔNG VẼ THEO TỶ LỆ BẢN VẼ.
3. BẢN VẼ NÀY CHỈ ĐƯỢC CÁC KIẾN TRÚC, KỸ SƯ, NHÀ THẦU, CHUYÊN GIA TƯ VẤN VÀ THIẾT KẾ SỬ DỤNG CHO MỤC ĐÍCH LẬP KẾ HOẠCH. KHÔNG SỬ DỤNG BẢN VẼ NÀY CHO THI CÔNG.
4. TẤT CẢ CÁC THÔNG TIN Ở ĐÂY LÀ THỰC TẠI ĐANG PHÁT TRIỂN NHƯNG PHẢI ĐƯỢC NHÀ SẢN XUẤT SẢN PHẨM XEM XÉT LẠI VÀ PHÊ DUYỆT CHO ỨNG DỤNG THỰC TẾ.
5. LƯU Ý CỦA NHÀ THẦU: ĐỂ THAM KHẢO THÔNG TIN SẢN PHẨM VÀ CÔNG TY, HÃY TRUY CẬP www.CADdetails.com/info VÀ SỐ THAM CHIẾU 5104-030
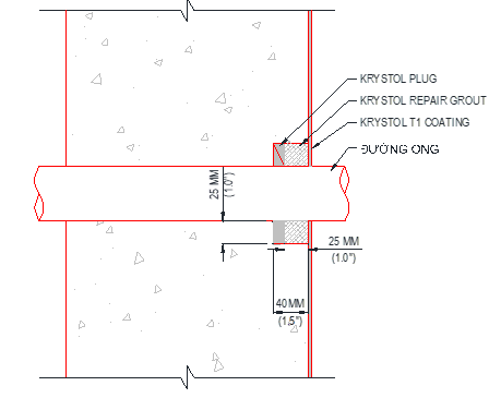
II. HỆ THỐNG SỬA CHỮA RÒ RỈ KRYSTOL- SỬA CHỮA ĐƯỜNG ỐNG

SỬA CHỮA ĐƯỜNG ỐNG RÒ RỈ-NGẤM
LƯU Ý CỦA NHÀ SẢN XUẤT:
- ĐỤC ĐỂ TẠO RÃNH QUANH ĐƯỜNG ỐNG ĐẠT YÊU CẦU 25 MM X 40 MM (1 X 1,5)
1. ỨNG DỤNG KRYSTOL PLUG ĐỂ CHẶN NƯỚC ĐANG CHẢY CHO RÃNH ĐÃ ĐƯỢC CHUẨN BỊ.
2. CHÈN CHẶT PHẦN CÒN LẠI CỦA RÃNH BẰNG VỮA SỬA CHỮA KRYSTOL VỚI TỶ LỆ KHOẢNG 1.6 KG CHO MỖI MÉT TUYẾN TÍNH(1 LB/FOOT TUYẾN TÍNH).
3. CHỐNG THẤM TOÀN BỘ TƯỜNG HOẶC PANEN BẰNG KRYSTOL T1 VỚI TỶ LỆ 1,2 KG / M2.
LƯU Ý:
1. THI CÔNG PHẢI ĐƯỢC HOÀN THIỆN THEO THÔNG SỐ KỸ THUẬT CỦA NHÀ SẢN XUẤT.
2. KHÔNG VẼ THEO TỶ LỆ BẢN VẼ.
3. BẢN VẼ NÀY CHỈ ĐƯỢC CÁC KIẾN TRÚC, KỸ SƯ, NHÀ THẦU, CHUYÊN GIA TƯ VẤN VÀ THIẾT KẾ SỬ DỤNG CHO MỤC ĐÍCH LẬP KẾ HOẠCH. KHÔNG SỬ DỤNG BẢN VẼ NÀY CHO THI CÔNG.
4. TẤT CẢ CÁC THÔNG TIN Ở ĐÂY LÀ THỰC TẠI ĐANG PHÁT TRIỂN NHƯNG PHẢI ĐƯỢC NHÀ SẢN XUẤT SẢN PHẨM XEM XÉT LẠI VÀ PHÊ DUYỆT CHO ỨNG DỤNG THỰC TẾ.
5. LƯU Ý CỦA NHÀ THẦU: ĐỂ THAM KHẢO THÔNG TIN SẢN PHẨM VÀ CÔNG TY, HÃY TRUY CẬP www.CADdetails.com/info VÀ SỐ THAM CHIẾU 5104-030